


Mökki JM Stugor & Fritid Edda
20 m2, Tehollinen paksuus 44 mm
Ruhon/puun paksuus
Solmittu puutavara 44 x 130 mm, saatavana myös 60 ja 90 mm:n paksuisina.
Loma-asunnossa "Edda" on fiksu pohjaratkaisu, jossa on käytännöllinen ja viihtyisä parvi. Edda antaa sinulle mukavan mökin, jossa on kolme erikokoista huonetta, jotka voit sisustaa esimerkiksi olohuoneeksi / suureksi mökiksi + makuuhuoneeksi + keittiöksi / ruokakomeroksi tai keittiöksi / oleskelutilaksi + toimistoksi + wc:ksi / kylpyammeeksi / suihkuksi. Laadukas ja vakaa rakenne, karkeat kattoharjanteet ja hienoksi höylätty 28 mm puulattia. Saga sopii kesämökiksi, vierasmökiksi tai loma-asunnoksi ympäri vuoden ja se voidaan helposti lisäeristää, lattiassa, katossa ja/tai seinissä ulkona / sisällä.
Ikkunat ja ovet
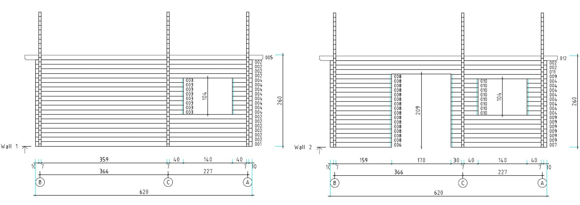
- Avattavat ikkunat: 2-lasiset eristyslasi-ikkunat (valinnan mukaan). U-arvo 2,6. Valinnaisesti 3-lasiset U-arvo 1,1, ikkunapalkit
- 4 kpl. Kaksoislasit 1400 x 1000 mm, 1 kpl. Ikkuna 600 x 600 mm (parvi-ikkuna)
- 1 kpl. Pariovi (täyslasi): 1690 x 2000 mm, sis. lukko, kahva, avaimet, eristyslasi
- Sisäovet: 2 kpl. 900 x 2000 mm. Portaat parvelle: 1 kpl sisältyy.
- Ei sisälly: Kattoverhous, eristys, ruuvit ja naulat.

20 m2, Tehollinen paksuus 44 mm
Ruhon/puun paksuus
Solmittu puutavara 44 x 130 mm, saatavana myös 60 ja 90 mm:n paksuisina.
Loma-asunnossa "Edda" on fiksu pohjaratkaisu, jossa on käytännöllinen ja viihtyisä parvi. Edda antaa sinulle mukavan mökin, jossa on kolme erikokoista huonetta, jotka voit sisustaa esimerkiksi olohuoneeksi / suureksi mökiksi + makuuhuoneeksi + keittiöksi / ruokakomeroksi tai keittiöksi / oleskelutilaksi + toimistoksi + wc:ksi / kylpyammeeksi / suihkuksi. Laadukas ja vakaa rakenne, karkeat kattoharjanteet ja hienoksi höylätty 28 mm puulattia. Saga sopii kesämökiksi, vierasmökiksi tai loma-asunnoksi ympäri vuoden ja se voidaan helposti lisäeristää, lattiassa, katossa ja/tai seinissä ulkona / sisällä.
Ikkunat ja ovet
- Avattavat ikkunat: 2-lasiset eristyslasi-ikkunat (valinnan mukaan). U-arvo 2,6. Valinnaisesti 3-lasiset U-arvo 1,1, ikkunapalkit
- 4 kpl. Kaksoislasit 1400 x 1000 mm, 1 kpl. Ikkuna 600 x 600 mm (parvi-ikkuna)
- 1 kpl. Pariovi (täyslasi): 1690 x 2000 mm, sis. lukko, kahva, avaimet, eristyslasi
- Sisäovet: 2 kpl. 900 x 2000 mm. Portaat parvelle: 1 kpl sisältyy.
- Ei sisälly: Kattoverhous, eristys, ruuvit ja naulat.
Lisäosat
Vaihtoehto Etuovi
Etuovi JM Stugor & Fritid Valkoinen
900 x 2000 mm, Vasemmalle ripustettu, 1 - Suuri ikkuna, jossa on lasituspalkit
900 x 2000 mm, Oikealle ripustettu, 1 - Suuri ikkuna, jossa on lasituspalkit
900 x 2100 mm, Vasemmalle ripustettu, 1 - Suuri ikkuna, jossa on lasituspalkit
900 x 2100 mm, Oikealle ripustettu, 1 - Suuri ikkuna, jossa on lasituspalkit
1000 x 2100 mm, Vasemmalle ripustettu, 1 - Suuri ikkuna, jossa on lasituspalkit
1000 x 2100 mm, Oikealle ripustettu, 1 - Suuri ikkuna, jossa on lasituspalkit
900 x 2000 mm, Vasemmalle ripustettu, 2 - Puolikuun muotoiset ikkunat, joissa on lasituspalkit
900 x 2000 mm, Oikealle ripustettu, 2 - Puolikuun muotoiset ikkunat, joissa on lasituspalkit
900 x 2100 mm, Vasemmalle ripustettu, 2 - Puolikuun muotoiset ikkunat, joissa on lasituspalkit
900 x 2100 mm, Oikealle ripustettu, 2 - Puolikuun muotoiset ikkunat, joissa on lasituspalkit
1000 x 2100 mm, Vasemmalle ripustettu, 2 - Puolikuun muotoiset ikkunat, joissa on lasituspalkit
1000 x 2100 mm, Oikealle ripustettu, 2 - Puolikuun muotoiset ikkunat, joissa on lasituspalkit
900 x 2000 mm, Vasemmalle ripustettu, 3 - Pidennetty kapea ikkuna
900 x 2100 mm, Vasemmalle ripustettu, 3 - Pidennetty kapea ikkuna
1000 x 2100 mm, Vasemmalle ripustettu, 3 - Pidennetty kapea ikkuna
1000 x 2100 mm, Oikealle ripustettu, 3 - Pidennetty kapea ikkuna
900 x 2000 mm, Vasemmalle ripustettu, 5 - Timantin muotoinen ikkuna
900 x 2000 mm, Oikealle ripustettu, 5 - Timantin muotoinen ikkuna
900 x 2100 mm, Vasemmalle ripustettu, 5 - Timantin muotoinen ikkuna
900 x 2100 mm, Oikealle ripustettu, 5 - Timantin muotoinen ikkuna
1000 x 2100 mm, Vasemmalle ripustettu, 5 - Timantin muotoinen ikkuna
1000 x 2100 mm, Oikealle ripustettu, 5 - Timantin muotoinen ikkuna
Extra Timber Pihalla
Yleensä lisäät yhden tai useamman ylimääräisen puukerroksen, jos aiot eristää mökkiäsi, esimerkiksi sisäkattoa, jolloin hieman suurempi kattokorkeus voi olla tarkoituksenmukainen. Mutta aivan yhtä hyvin katon voi eristää ulkopuolelta ylhäältäpäin, kummalla tavalla tahansa, riippuen siitä, haluatko sisäkattoon näkyviä harjuja tai panelointia.
Extra Timber Pihalla JM Stugor & Fritid 20 m2
Ylimääräinen puutavarapiha
Yleensä lisäät yhden tai useamman ylimääräisen puukerroksen, jos aiot eristää mökkiäsi, esimerkiksi sisäkattoa, jolloin hieman suurempi kattokorkeus voi olla tarkoituksenmukainen. Mutta aivan yhtä hyvin katon voi eristää ulkopuolelta ylhäältä päin, kummin päin tahansa, riippuen siitä, haluatko sisäkattoon näkyviä harjuja tai panelointia.
Ikkunapalkit
Fönsterspröjs JM Stugor & Fritid
Liimapalkki - 25 mm:n liimapalkki pakkauksen molemmilla puolilla, ilman duplexia, edullinen vaihtoehto.
Tekniset tiedot
| Paino | Leveys | Korkeus | Pituus | Katon kaltevuus | Katon kantavuus | mykistää | Lattia | Tak | Talon tyyppi | Materiaali (puu) | Rakennuksen pinta-ala |
|---|---|---|---|---|---|---|---|---|---|---|---|
| 2200 kg | 3,4 m | 3,8 m | 5,8 m | 33 astetta (valinnainen) | n. 180-220 kg/m2 (riippuen puun paksuudesta ja harjanteista). | 2 Höylätyt ja solmitut seinäprofiilit, 60 x 130 mm tai 90 x 130 mm. | 28 mm hienoksi höylätty lattiapalkkien päälle 60 x 140/160/180 mm. | 19 mm x 100 mm höylätty raakakuitulevy kattoharjanteilla 60 x 160/180 mm. | oksapuusta tehty parvimökki, minkä tahansa puun paksuus 44, 60 tai 90 mm (seinät). | myöhäispuustoinen pohjoismainen kuusi, käsittelemätön ja maalaamaton puu. | 20 neliömetriä |
Paketin mitat
| Leveys | Korkeus | Syvyys | Tilavuus | Paino |
|---|---|---|---|---|
| N/A | N/A | N/A | N/A | 2200kg |

