






Mökki JM Stugor & Fritid Lisa
25 m2, Tehollinen paksuus 44 mm
Ruhon/puun paksuus
Solmittu puutavara 44 x 130 mm. Saatavana myös 60 ja 90 mm:n paksuisina.
Lisa on hyvin suunniteltu ja ylellinen lomamökki 25 ja 30 neliömetrin versioina, joissa molemmissa on 3 huonetta ja makuuparvi. Loma-asunto on kuin perinteinen pientalo, jossa on erittäin mukava luonne, harjakatto, ikkunat kaikkiin suuntiin ja useita erilaisia vaihtoehtoja, kuten käytännöllinen ullakko. Mökki "Lisa" on 2000-luvun annettu malli - on tullut jäädäkseen!
Solmittu malli, jossa on 3 huonetta ja makuuparvi sekä paljon ikkunoita, jotka tuovat suurta ja ihanaa valoa kaikista suunnista. Pitkänomainen asuintila tarjoaa hienovaraisen yksityisyyden makuutilalle, parvelle ja kauniisti kehystetylle sisäänkäynnille, jossa on täyslasinen pariovi.
Ohjaamo on saatavana 44, 60 tai 90 mm:n puupaksuudella. Hytti toimitetaan täydellisenä sarjana, jossa kaikki osat on valmiiksi leikattu ja numeroitu, jotta kokoaminen on nopeaa ja helppoa - ja se onnistuu helposti kahdelta henkilöltä!
Ikkunat ja ovet
- Avattavat ikkunat: kaksinkertaiset eristetyt ikkunat (valinnan mukaan), U-arvo 2,6
- 1 kpl. Kaksinkertainen terassi-/sisäänkäyntiovi (täyslasi): 1380x1980 mm
- 2 kpl pyöreät ikkunat (yksi kiinteä ja yksi avattava, valinnainen sijoitus) D600 mm
- 3 kpl. 680x1980 mm
- 4 kpl. 760x380/480 mm
- 1 sisäovi 880x1980 mm (kokopuu, maalaamaton)
- Ei sisälly: Kattoverhous, eriste, ruuvit ja naulat.
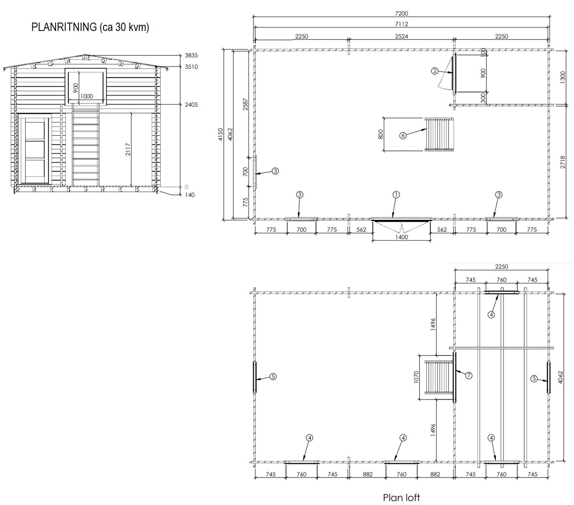
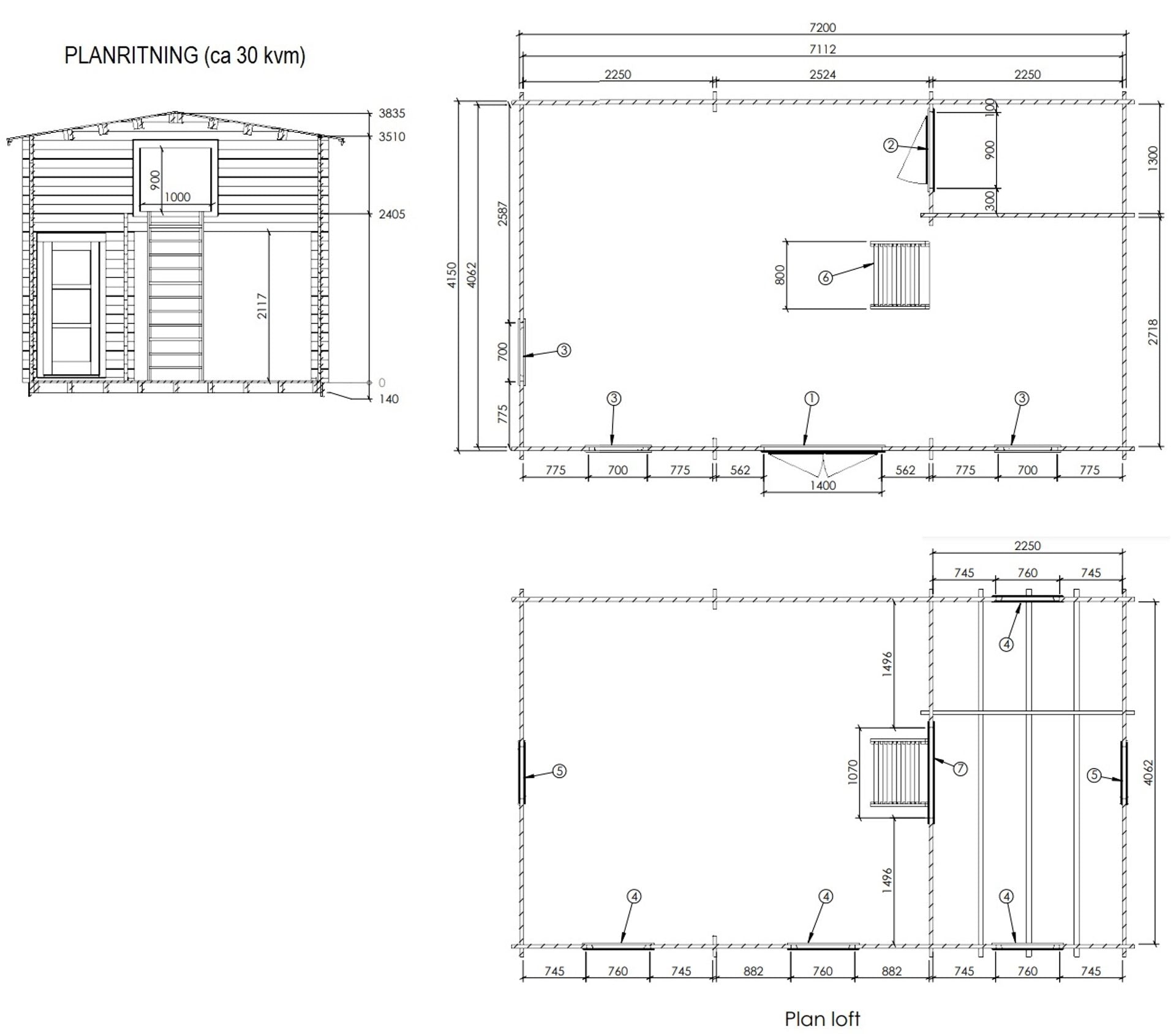
Pohjapiirros
Rakennuksen pinta-ala: 25 neliömetriä, Asuinpinta-ala: n. 24,8 neliömetriä + makuuparvi n. 9 neliömetriä. Rakennuksen pinta-ala: 30 m², Asuinpinta-ala: n. 29,9 m² + makuuparvi n. 9 m².

25 m2, Tehollinen paksuus 44 mm
Ruhon/puun paksuus
Solmittu puutavara 44 x 130 mm. Saatavana myös 60 ja 90 mm:n paksuisina.
Lisa on hyvin suunniteltu ja ylellinen lomamökki 25 ja 30 neliömetrin versioina, joissa molemmissa on 3 huonetta ja makuuparvi. Loma-asunto on kuin perinteinen pientalo, jossa on erittäin mukava luonne, harjakatto, ikkunat kaikkiin suuntiin ja useita erilaisia vaihtoehtoja, kuten käytännöllinen ullakko. Mökki "Lisa" on 2000-luvun annettu malli - on tullut jäädäkseen!
Solmittu malli, jossa on 3 huonetta ja makuuparvi sekä paljon ikkunoita, jotka tuovat suurta ja ihanaa valoa kaikista suunnista. Pitkänomainen asuintila tarjoaa hienovaraisen yksityisyyden makuutilalle, parvelle ja kauniisti kehystetylle sisäänkäynnille, jossa on täyslasinen pariovi.
Ohjaamo on saatavana 44, 60 tai 90 mm:n puupaksuudella. Hytti toimitetaan täydellisenä sarjana, jossa kaikki osat on valmiiksi leikattu ja numeroitu, jotta kokoaminen on nopeaa ja helppoa - ja se onnistuu helposti kahdelta henkilöltä!
Ikkunat ja ovet
- Avattavat ikkunat: kaksinkertaiset eristetyt ikkunat (valinnan mukaan), U-arvo 2,6
- 1 kpl. Kaksinkertainen terassi-/sisäänkäyntiovi (täyslasi): 1380x1980 mm
- 2 kpl pyöreät ikkunat (yksi kiinteä ja yksi avattava, valinnainen sijoitus) D600 mm
- 3 kpl. 680x1980 mm
- 4 kpl. 760x380/480 mm
- 1 sisäovi 880x1980 mm (kokopuu, maalaamaton)
- Ei sisälly: Kattoverhous, eriste, ruuvit ja naulat.
Pohjapiirros
Rakennuksen pinta-ala: 25 neliömetriä, Asuinpinta-ala: n. 24,8 neliömetriä + makuuparvi n. 9 neliömetriä. Rakennuksen pinta-ala: 30 m², Asuinpinta-ala: n. 29,9 m² + makuuparvi n. 9 m².
Lisäosat
Vaihtoehto Etuovi
Etuovi JM Stugor & Fritid Valkoinen
900 x 2000 mm, Vasemmalle ripustettu, 1 - Suuri ikkuna, jossa on lasituspalkit
900 x 2000 mm, Oikealle ripustettu, 1 - Suuri ikkuna, jossa on lasituspalkit
900 x 2100 mm, Vasemmalle ripustettu, 1 - Suuri ikkuna, jossa on lasituspalkit
900 x 2100 mm, Oikealle ripustettu, 1 - Suuri ikkuna, jossa on lasituspalkit
1000 x 2100 mm, Vasemmalle ripustettu, 1 - Suuri ikkuna, jossa on lasituspalkit
1000 x 2100 mm, Oikealle ripustettu, 1 - Suuri ikkuna, jossa on lasituspalkit
900 x 2000 mm, Vasemmalle ripustettu, 2 - Puolikuun muotoiset ikkunat, joissa on lasituspalkit
900 x 2000 mm, Oikealle ripustettu, 2 - Puolikuun muotoiset ikkunat, joissa on lasituspalkit
900 x 2100 mm, Vasemmalle ripustettu, 2 - Puolikuun muotoiset ikkunat, joissa on lasituspalkit
900 x 2100 mm, Oikealle ripustettu, 2 - Puolikuun muotoiset ikkunat, joissa on lasituspalkit
1000 x 2100 mm, Vasemmalle ripustettu, 2 - Puolikuun muotoiset ikkunat, joissa on lasituspalkit
1000 x 2100 mm, Oikealle ripustettu, 2 - Puolikuun muotoiset ikkunat, joissa on lasituspalkit
900 x 2000 mm, Vasemmalle ripustettu, 3 - Pidennetty kapea ikkuna
900 x 2100 mm, Vasemmalle ripustettu, 3 - Pidennetty kapea ikkuna
1000 x 2100 mm, Vasemmalle ripustettu, 3 - Pidennetty kapea ikkuna
1000 x 2100 mm, Oikealle ripustettu, 3 - Pidennetty kapea ikkuna
900 x 2000 mm, Vasemmalle ripustettu, 5 - Timantin muotoinen ikkuna
900 x 2000 mm, Oikealle ripustettu, 5 - Timantin muotoinen ikkuna
900 x 2100 mm, Vasemmalle ripustettu, 5 - Timantin muotoinen ikkuna
900 x 2100 mm, Oikealle ripustettu, 5 - Timantin muotoinen ikkuna
1000 x 2100 mm, Vasemmalle ripustettu, 5 - Timantin muotoinen ikkuna
1000 x 2100 mm, Oikealle ripustettu, 5 - Timantin muotoinen ikkuna
Extra Timber Pihalla
Yleensä lisäät yhden tai useamman ylimääräisen puukerroksen, jos aiot eristää mökkiäsi, esimerkiksi sisäkattoa, jolloin hieman suurempi kattokorkeus voi olla tarkoituksenmukainen. Mutta aivan yhtä hyvin katon voi eristää ulkopuolelta ylhäältäpäin, kummalla tavalla tahansa, riippuen siitä, haluatko sisäkattoon näkyviä harjuja tai panelointia.
Extra Timber Pihalla JM Stugor & Fritid 25 m2
Ylimääräinen puutavarapiha
Yleensä lisäät yhden tai useamman ylimääräisen puukerroksen, jos aiot eristää mökkiäsi, esimerkiksi sisäkattoa, jolloin hieman suurempi kattokorkeus voi olla tarkoituksenmukainen. Mutta aivan yhtä hyvin katon voi eristää ulkopuolelta ylhäältä päin, kummin päin tahansa, riippuen siitä, haluatko sisäkattoon näkyviä harjuja tai panelointia.
Ikkunapalkit
Fönsterspröjs JM Stugor & Fritid
Liimapalkki - 25 mm:n liimapalkki pakkauksen molemmilla puolilla, ilman duplexia, edullinen vaihtoehto.
Tekniset tiedot
| Paino | Leveys | Korkeus | Pituus | Katon kaltevuus | Katon kantavuus | mykistää | Lattia | Tak | Talon tyyppi | Rakennuksen pinta-ala | Materiaali (puu).1 |
|---|---|---|---|---|---|---|---|---|---|---|---|
| 2800 kg | noin 3,6 m | noin 3,8 m | noin 6,8 m | 9/10 astetta (harjakatto) | 240 kg/m2 | Höylätyt ja oksatut puiset seinäprofiilit | 28 mm hienoksi höylätty lattiapalkkien 60 x 140 mm päälle. Saatavana vaihtoehtona 60x180/200 mm. | 19 mm x 100 mm höylättyjä parruja kattoharjanteissa 60 x 140 mm | oksapuusta tehty parvimökki, minkä tahansa puun paksuus 44, 60 tai 90 mm (seinät). | 25 neliömetriä | myöhäispuustoinen pohjoismainen kuusi, käsittelemätön ja maalaamaton puu. |
Paketin mitat
| Leveys | Korkeus | Syvyys | Tilavuus | Paino |
|---|---|---|---|---|
| N/A | N/A | N/A | N/A | 2800kg |

