








Mökki JM Stugor & Fritid Marten
30 m2, Tehollinen paksuus 90 mm
Ruhon/puun paksuus
Solmittu puu 90 x 130 mm. Saatavana myös 44 ja 60 mm:n paksuisina.
Ikkunat ja ovet
- Avattavat ikkunat: 2-lasiset eristyslasi-ikkunat (valinnasta riippuen). U-arvo 2,6. Valinnaisesti 3-lasiset U-arvo 1,1
- 2 kpl. Ikkuna 1100 x 650 mm, 1 ikkuna 1000 x 2000 mm (ei avattava), 1 puolikuusi ikkuna (ei avattava)
- 2 ikkunaa 650 x 650 mm (avattava, esim. WC/parvi-ikkuna)
- 1 ikkuna. Parveke-/sisäänkäyntiovi 1600 x 2000 mm, eristetty lasi. Lisävarusteena: lasituslistat
- Sisäovet: 2 kpl. 800 x 2000 mm. Portaat parvelle: 1 kpl sisältyy
- Ei sisälly: Kattoverhous, eristys, ruuvit ja naulat.
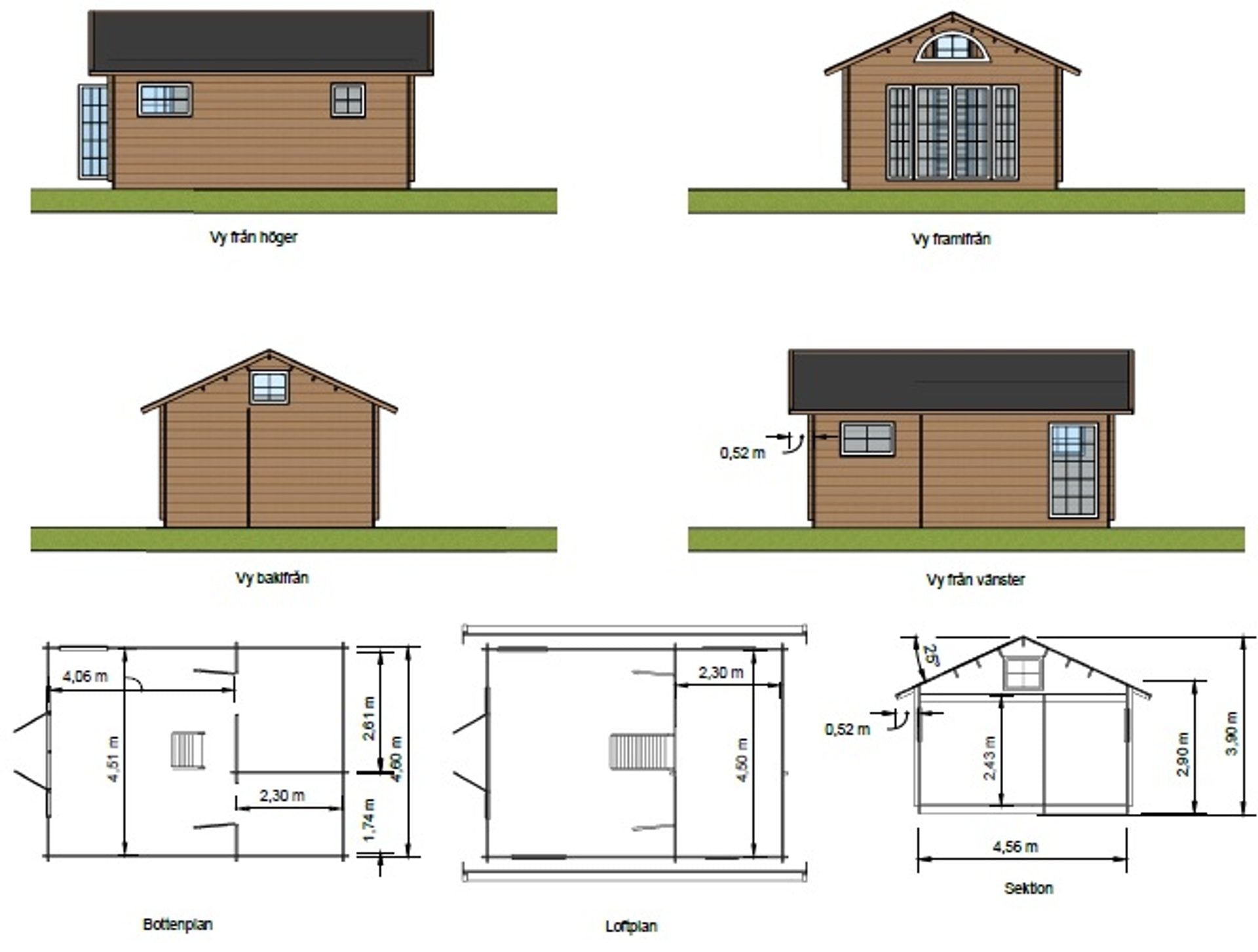
Pohjapiirros
Rakennuksen pinta-ala: n. 30 neliömetriä, Parvi n. 11 neliömetriä (valinnainen), (parvi), Olohuone: n. 18,3 neliömetriä, Keittiö/WC-tila: 4,2 neliömetriä, Makuuhuone/-huone: 6,3 neliömetriä, Makuuparvi: n. 11 neliömetriä (parven vapaa maksimikorkeus keskellä on n. 1,6 m), Kattokorkeudet: Olohuone n. 3,8 m vs. n. 2,2 m.
Älykkään pohjaratkaisun ja käytännöllisen ja viihtyisän parven lisäksi loma-asunnossa "Mårten" on myös paljon luonnetta, joka päästää sisään ihanaa valoa. Mårten on saatavana 25 tai 30 neliömetrin versiona, johon liittyy noin 9-10 neliömetrin parvi (koosta riippuen).
Mårten antaa sinulle mukavan mökin, jossa on kolme erikokoista huonetta, jotka voit sisustaa esimerkiksi seuraavasti: olohuone / iso mökki + makuuhuone + keittiö / ruokakomero tai keittiö / oleskelutila + toimisto + WC / kylpyamme / suihku.
Laadukas ja vakaa rakenne, karkeat kattoharjanteet ja hienohöylätty 28 mm:n puulattia. Mårten soveltuu kesämökiksi, vierasmajaan tai loma-asunnoksi ympäri vuoden, ja se voidaan helposti eristää lisäksi lattiassa, katossa ja/tai seinissä ulkona/sisällä.

30 m2, Tehollinen paksuus 90 mm
Ruhon/puun paksuus
Solmittu puu 90 x 130 mm. Saatavana myös 44 ja 60 mm:n paksuisina.
Ikkunat ja ovet
- Avattavat ikkunat: 2-lasiset eristyslasi-ikkunat (valinnasta riippuen). U-arvo 2,6. Valinnaisesti 3-lasiset U-arvo 1,1
- 2 kpl. Ikkuna 1100 x 650 mm, 1 ikkuna 1000 x 2000 mm (ei avattava), 1 puolikuusi ikkuna (ei avattava)
- 2 ikkunaa 650 x 650 mm (avattava, esim. WC/parvi-ikkuna)
- 1 ikkuna. Parveke-/sisäänkäyntiovi 1600 x 2000 mm, eristetty lasi. Lisävarusteena: lasituslistat
- Sisäovet: 2 kpl. 800 x 2000 mm. Portaat parvelle: 1 kpl sisältyy
- Ei sisälly: Kattoverhous, eristys, ruuvit ja naulat.
Pohjapiirros
Rakennuksen pinta-ala: n. 30 neliömetriä, Parvi n. 11 neliömetriä (valinnainen), (parvi), Olohuone: n. 18,3 neliömetriä, Keittiö/WC-tila: 4,2 neliömetriä, Makuuhuone/-huone: 6,3 neliömetriä, Makuuparvi: n. 11 neliömetriä (parven vapaa maksimikorkeus keskellä on n. 1,6 m), Kattokorkeudet: Olohuone n. 3,8 m vs. n. 2,2 m.
Älykkään pohjaratkaisun ja käytännöllisen ja viihtyisän parven lisäksi loma-asunnossa "Mårten" on myös paljon luonnetta, joka päästää sisään ihanaa valoa. Mårten on saatavana 25 tai 30 neliömetrin versiona, johon liittyy noin 9-10 neliömetrin parvi (koosta riippuen).
Mårten antaa sinulle mukavan mökin, jossa on kolme erikokoista huonetta, jotka voit sisustaa esimerkiksi seuraavasti: olohuone / iso mökki + makuuhuone + keittiö / ruokakomero tai keittiö / oleskelutila + toimisto + WC / kylpyamme / suihku.
Laadukas ja vakaa rakenne, karkeat kattoharjanteet ja hienohöylätty 28 mm:n puulattia. Mårten soveltuu kesämökiksi, vierasmajaan tai loma-asunnoksi ympäri vuoden, ja se voidaan helposti eristää lisäksi lattiassa, katossa ja/tai seinissä ulkona/sisällä.
Lisäosat
Ylimääräinen sisäovi
Innerdörr JM Stugor & Fritid
Extra Timber Pihalla
Yleensä lisäät yhden tai useamman ylimääräisen puukerroksen, jos aiot eristää mökkiäsi, esimerkiksi sisäkattoa, jolloin hieman suurempi kattokorkeus voi olla tarkoituksenmukainen. Mutta aivan yhtä hyvin katon voi eristää ulkopuolelta ylhäältäpäin, kummalla tavalla tahansa, riippuen siitä, haluatko sisäkattoon näkyviä harjuja tai panelointia.
Extra Timber Pihalla JM Stugor & Fritid 30 m2
Ylimääräinen puutavarapiha
Yleensä lisäät yhden tai useamman ylimääräisen puukerroksen, jos aiot eristää mökkiäsi, esimerkiksi sisäkattoa, jolloin hieman suurempi kattokorkeus voi olla tarkoituksenmukainen. Mutta aivan yhtä hyvin katon voi eristää ulkopuolelta ylhäältä päin, kummin päin tahansa, riippuen siitä, haluatko sisäkattoon näkyviä harjuja tai panelointia.
Ikkunapalkit
Fönsterspröjs JM Stugor & Fritid
Liimapalkki - 25 mm:n liimapalkki pakkauksen molemmilla puolilla, ilman duplexia, edullinen vaihtoehto.
Tekniset tiedot
| Paino | Leveys | Korkeus | Pituus | Katon kaltevuus | Katon kantavuus | mykistää | Lattia | Tak | Talon tyyppi | Materiaali (puu) | Rakennuksen pinta-ala | Takyta |
|---|---|---|---|---|---|---|---|---|---|---|---|---|
| 5200 kg | noin 4,6 m | noin 3,9 m | noin 6,6 m | 25 astetta (valinnainen) | n. 180-250 kg/m2 (riippuen puun paksuudesta ja harjanteista). | Höylätyt ja solmitut seinäprofiilit, 60 x 130 mm tai 90 x 130 mm. | 28 mm hienoksi höylätty lattiapalkkien päälle 60 x 140/160/180 mm. | 19 mm x 100 mm höylätty raakalevy kattoharjanteilla 60 x 140/160/180 mm | oksapuusta tehty parvimökki, minkä tahansa puun paksuus 44, 60 tai 90 mm (seinät). | myöhäispuustoinen pohjoismainen kuusi, käsittelemätön ja maalaamaton puu. | 30 neliömetriä | noin 46 neliömetriä |
Paketin mitat
| Leveys | Korkeus | Syvyys | Tilavuus | Paino |
|---|---|---|---|---|
| N/A | N/A | N/A | N/A | 5200kg |

