







Stuga JM Stugor & Fritid Anke 85 m2
Virkestjocklek 90 mm
Hustyp
Knuttimrad 5 rum, 2-plan, 90 mm virkestjocklek. Finns även i 60 mm.
Den här mycket vackra och rymliga stugan fungerar lika väl som fritidshus som permanentboende för den lilla familjen med sina 5 rum fördelat på 2 plan (totalt ca 85 kvm, 44 + 41 kvm). Huset har mycket karaktär med både runda och triangelformade fönster, loft och rymlig takkupa med ståhöjd. Anke levereras som en byggsats som händiga personer klarar av att sätta ihop, alla delar är numrerade och färdigkapade - perfekt "lego" för alla gör-det-självare! På nedervåningen finns ett allrum på ca 28,5 kvm, två separat rum på ca 7 kvm vardera, lämpligtvis för kök och WC, eller sovrum. En riktigt fin L-formad trappa som leder upp till ett rymligt loft med stort öppet allrum på ca 26 kvm med en vacker takkupa samt ett stort sovrum på ca 15 kvm., totalt ca 41 kvm loft. Stugan har väl tilltagna fönster, i olika moderna former som tillåter stort härligt ljusinsläpp.
Fönster & dörrar
- Öppningsbara fönster: 2-glas isolerglasfönster. Spröjs finns som tillval.
- 2 st. dubbelfönster (BxH) 1400 x 1000 mm, 3 st. fönster 760 x 1000 mm och 2 st. runda diameter 800 mm (gavelfönster), 2 st. triangelformade fönster (i takkupan) 780 x 910 mm
- 1 st. Entrédörr (fönsterdörr): 1000 x 2000 mm samt 1 st. dubbeldörr (helglas/altandörr) 1400 x 2000 mm, inkl. lås, trycke, nycklar, 3 st Innerdörrar: 800/900 x 2000 mm, inkl lås, trycke.
- Riktigt L-formad fast trappa till övervåning/loft.
- Ingår ej: Takbeklädnad, isolering, skruv och spik
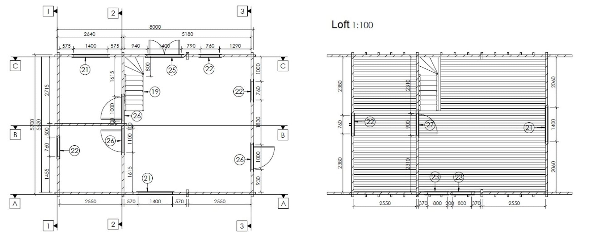
Planlösning
Byggyta: 45,2 kvm, Boyta: ca 85 kvm, ca 44 kvm entréplan + loft ca 41 kvm
Storstuga
ca 28,5 kvm, Kök/rum 1: ca 7 kvm, Sovrum/WC/rum 2: ca 6,9 kvm, Övervåning/Loft: allrum ca 26 kvm (loftets fria maxhöjd i mitten är ca 2,2 m) och 1 sovrum på ca 15 kvm, Takhöjder: entréplan: Storstuga, WC/Kök/sovrum ca 2,3 m, loft snedtak/takkupa ståhöjd ca 2,2 m
- 5 års garanti
- Spontade tak- & golvbrädor
- Kraftigt dimenstionerade takåsar
- Kraftigt golvbjälklag
- Fint hyvlade golv- och takbrädor
- Mycket bra passform på alla delar
- Enkel och snabb montering
- Märkta, numrerade och färdigkapade delar
- Gummitätningar- & silicon (fönster & dörrar)
- Typ av trä: Nordiska gran
- Äkta dubbelglas/ISO
- Knuttimrade väggar med dubbelhakar/spont
- Kraftiga kryssbalkar av limträ
- Dörrkarm av limträ
- Delarna levereras obehandlade
- Vrid- & sidohängda fönster
- Trycken och beslag
- Handtag+cylinderlås+nycklar ingår till innerdörrar. Finns som tillval till ytterdörrar.
- Fönster- & dörrfoder (för 2-glas omålade). Spröjs finns som tillval.
- Justerbara dörrgångjärn

Virkestjocklek 90 mm
Hustyp
Knuttimrad 5 rum, 2-plan, 90 mm virkestjocklek. Finns även i 60 mm.
Den här mycket vackra och rymliga stugan fungerar lika väl som fritidshus som permanentboende för den lilla familjen med sina 5 rum fördelat på 2 plan (totalt ca 85 kvm, 44 + 41 kvm). Huset har mycket karaktär med både runda och triangelformade fönster, loft och rymlig takkupa med ståhöjd. Anke levereras som en byggsats som händiga personer klarar av att sätta ihop, alla delar är numrerade och färdigkapade - perfekt "lego" för alla gör-det-självare! På nedervåningen finns ett allrum på ca 28,5 kvm, två separat rum på ca 7 kvm vardera, lämpligtvis för kök och WC, eller sovrum. En riktigt fin L-formad trappa som leder upp till ett rymligt loft med stort öppet allrum på ca 26 kvm med en vacker takkupa samt ett stort sovrum på ca 15 kvm., totalt ca 41 kvm loft. Stugan har väl tilltagna fönster, i olika moderna former som tillåter stort härligt ljusinsläpp.
Fönster & dörrar
- Öppningsbara fönster: 2-glas isolerglasfönster. Spröjs finns som tillval.
- 2 st. dubbelfönster (BxH) 1400 x 1000 mm, 3 st. fönster 760 x 1000 mm och 2 st. runda diameter 800 mm (gavelfönster), 2 st. triangelformade fönster (i takkupan) 780 x 910 mm
- 1 st. Entrédörr (fönsterdörr): 1000 x 2000 mm samt 1 st. dubbeldörr (helglas/altandörr) 1400 x 2000 mm, inkl. lås, trycke, nycklar, 3 st Innerdörrar: 800/900 x 2000 mm, inkl lås, trycke.
- Riktigt L-formad fast trappa till övervåning/loft.
- Ingår ej: Takbeklädnad, isolering, skruv och spik
Planlösning
Byggyta: 45,2 kvm, Boyta: ca 85 kvm, ca 44 kvm entréplan + loft ca 41 kvm
Storstuga
ca 28,5 kvm, Kök/rum 1: ca 7 kvm, Sovrum/WC/rum 2: ca 6,9 kvm, Övervåning/Loft: allrum ca 26 kvm (loftets fria maxhöjd i mitten är ca 2,2 m) och 1 sovrum på ca 15 kvm, Takhöjder: entréplan: Storstuga, WC/Kök/sovrum ca 2,3 m, loft snedtak/takkupa ståhöjd ca 2,2 m
- 5 års garanti
- Spontade tak- & golvbrädor
- Kraftigt dimenstionerade takåsar
- Kraftigt golvbjälklag
- Fint hyvlade golv- och takbrädor
- Mycket bra passform på alla delar
- Enkel och snabb montering
- Märkta, numrerade och färdigkapade delar
- Gummitätningar- & silicon (fönster & dörrar)
- Typ av trä: Nordiska gran
- Äkta dubbelglas/ISO
- Knuttimrade väggar med dubbelhakar/spont
- Kraftiga kryssbalkar av limträ
- Dörrkarm av limträ
- Delarna levereras obehandlade
- Vrid- & sidohängda fönster
- Trycken och beslag
- Handtag+cylinderlås+nycklar ingår till innerdörrar. Finns som tillval till ytterdörrar.
- Fönster- & dörrfoder (för 2-glas omålade). Spröjs finns som tillval.
- Justerbara dörrgångjärn
Tillval
Alternativ Ytterdörr
Ytterdörr JM Stugor & Fritid Vit
Extra Timmervarv
Vanligtvis lägger man till ett eller flera extra timmervarv om man avser isolera sin stuga exempelvis invändigt tak, då kan det vara lämpligt med lite högre takhöjd. Men det går lika bra att isolera taket utvändigt ovanifrån, vilket som, beroende på om man önskar ha synliga takåsar i innertaket eller panel.
Extra Timmervarv JM Stugor & Fritid Anke
Extra timmervarv
Vanligtvis lägger man till ett eller flera extra timmervarv om man avser isolera sin stuga exempelvis invändigt tak, då kan det vara lämpligt med lite högre takhöjd. Men det går lika bra att isolera taket utvändigt ovanifrån, vilket som, beroende på om man önskar ha synliga takåsar i innertaket eller panel.
Farstukvist
En klassisk farstukvist utstrålar en känsla av välkomnande och värme och de dagar det regnar och snöar erbjuds det även som ett trevligt och bra skydd. Under sommarmånaderna passar farstukvisten perfekt som fikaplats, och under vintertid är det perfekta platsen att fylla med lyktor.
Farstukvist JM Stugor & Fritid
En farstukvist kan göra otroligt mycket för ett hus utseende, öka värdet och det första intrycket, trivseln och även vara mycket praktiskt. En klassisk farstukvist utstrålar en känsla av välkomnande och värme och de dagar det regnar och snöar erbjuds även ett trevligt och bra skydd. Under sommarmånaderna passar farstukvisten perfekt som fikaplats, och under vintertid är det den perfekta platsen att fylla med lyktor eller blöta stövlar.
- Mått monterad ca 1,6 x 1,2 m, takad med stolpar, räcken och golv
- Vikt ca 180 kg
- Paket/emballage: ca L: 3000 x B: 1200 x H: 300 mm
En farstukvist kan göra otroligt mycket för ett hus utseende, öka värdet och det första intrycket, trivseln och även vara mycket praktiskt. En klassisk farstukvist utstrålar en känsla av välkomnande och värme och de dagar det regnar och snöar erbjuds även ett trevligt och bra skydd. Under sommarmånaderna passar farstukvisten perfekt som fikaplats, och under vintertid är det den perfekta platsen att fylla med lyktor eller blöta stövlar.
- Mått monterad ca 1,6 x 1,2 m, takad med stolpar, räcken och golv
- Vikt ca 180 kg
- Paket/emballage: ca L: 3000 x B: 1200 x H: 300 mm
Specifikation
| Vikt | Bredd | Höjd | Längd | Taklutning | Takets bärighet | Stomme | Golv | Tak | Material (trä) | Byggyta | Takyta | Boyta |
|---|---|---|---|---|---|---|---|---|---|---|---|---|
| 8600 kg | 5,7 m | 4,9 m | 8 m | 29 grader (huskropp) och takkupa 50 grader | ca 250 kg/kvm | Planhyvlade och knuttimrade väggprofiler 60 x 130 | 28 mm fint hyvlade på golvbjälkar 60 x 140/160/180 mm | 19 mm x 100 mm fint hyvlad råspont på takåsar 60 x 200 resp 280 mm | senvuxen nordisk gran, obehandlat och omålat virke | 45,6 kvm | ca 84 kvm | ca 85 kvm (golvyta ca 44 kvm + 41 kvm loft) |

