




















Stuga JM Stugor & Fritid TIPI A-Frame
50 kvm
Drömmen om ett A-frame fritidshus
Upplev enkelheten, estetiken och närheten till naturen med denna exklusiva A-frame stuga. Föreställ dig att vakna upp till solstrålar som strilar genom de stora panoramafönstren och kliva ut på verandan omgiven av naturens lugn.
Rymlighet och design
Stugan erbjuder en generös boyta på cirka 50 kvm fördelat på två plan. Den totala byggytan är cirka 53 kvm, vilket inkluderar utskjutande delar för hall och kök. Inredningen är noga utvald för att harmonisera med den naturliga omgivningen.
Material och konstruktion
Materialsatsen innehåller allt du behöver för att bygga stugan: tak- och golvbjälklag, tak- och golvbrädor, samt fönster och dörrar. Observera att grund, isolering, och takbeklädnad inte ingår.
- Byggyta: 52,8 kvm
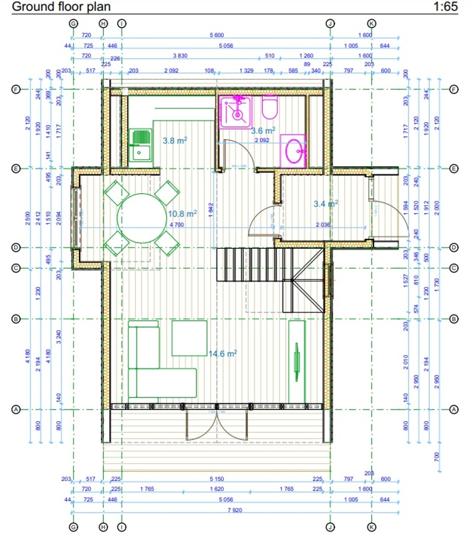
- Inre boyta nedre plan: 38,8 kvm
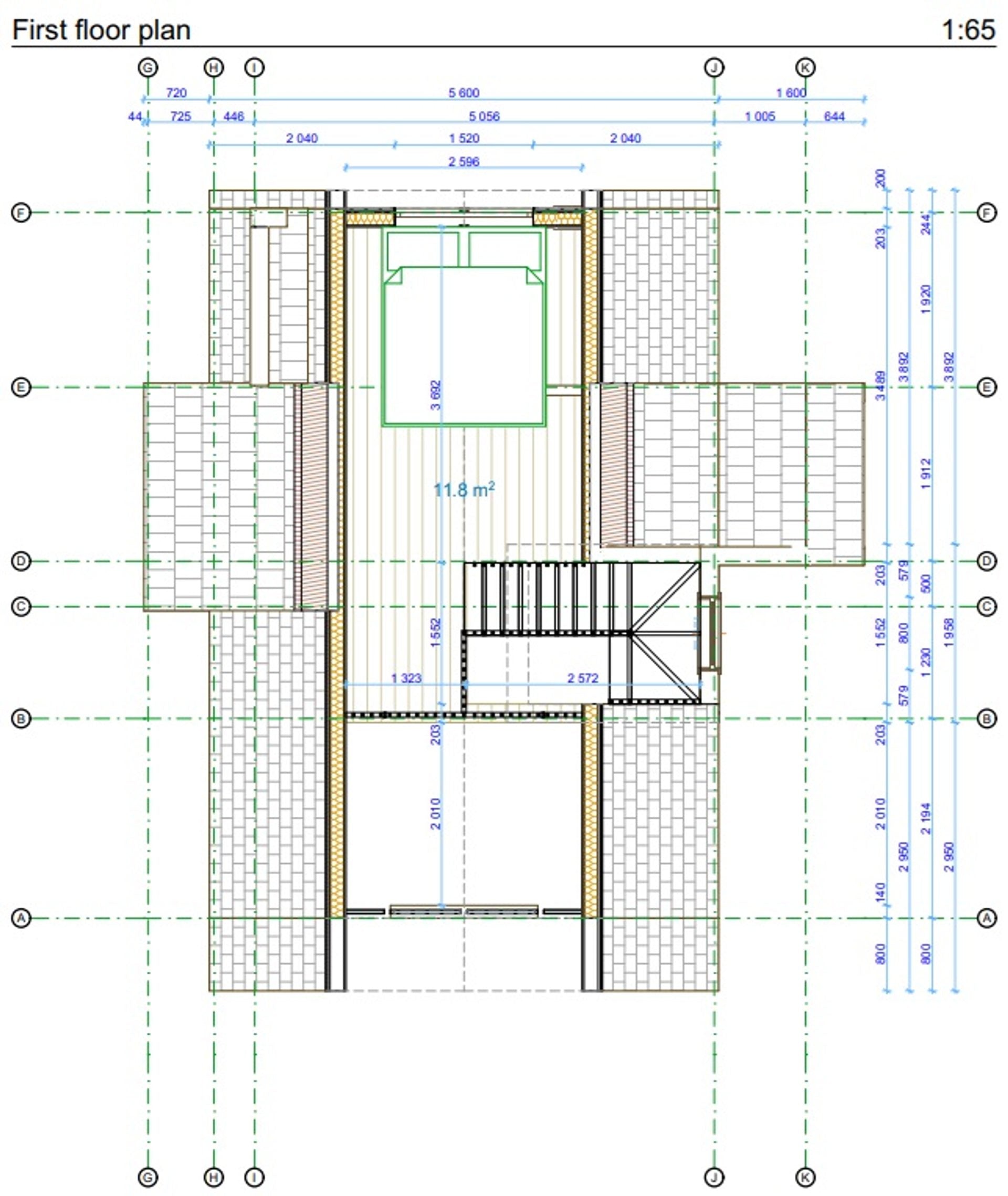
- Loft, övre plan: 11,8 kvm
- Antal dörrar: 3 st (inkl. låscylinder, trycke + 2 nycklar)
- Antal fönster: 15 st (2-glas/ISO)
- Takyta: 111 kvm

50 kvm
Drömmen om ett A-frame fritidshus
Upplev enkelheten, estetiken och närheten till naturen med denna exklusiva A-frame stuga. Föreställ dig att vakna upp till solstrålar som strilar genom de stora panoramafönstren och kliva ut på verandan omgiven av naturens lugn.
Rymlighet och design
Stugan erbjuder en generös boyta på cirka 50 kvm fördelat på två plan. Den totala byggytan är cirka 53 kvm, vilket inkluderar utskjutande delar för hall och kök. Inredningen är noga utvald för att harmonisera med den naturliga omgivningen.
Material och konstruktion
Materialsatsen innehåller allt du behöver för att bygga stugan: tak- och golvbjälklag, tak- och golvbrädor, samt fönster och dörrar. Observera att grund, isolering, och takbeklädnad inte ingår.
- Byggyta: 52,8 kvm
- Inre boyta nedre plan: 38,8 kvm
- Loft, övre plan: 11,8 kvm
- Antal dörrar: 3 st (inkl. låscylinder, trycke + 2 nycklar)
- Antal fönster: 15 st (2-glas/ISO)
- Takyta: 111 kvm
Specifikation
| Stomme | Golv | Tak | Hustyp | Byggyta | Material (trä) | Boyta | Loft |
|---|---|---|---|---|---|---|---|
| Regelstomme | 28 mm fint hyvlade på golvbjälkar 60 x 140mm | Takbjälklag i 60x200 mm + takbrädor fint hyvlade i 19 mm | A-frame stuga. Regel- och fasadvirke i fackverk. | 50 kvm | senvuxen nordisk gran, obehandlat och omålat virke | 50 kvm | ca 11,8 kvm |

