











Sommerhus JM Stugor & Fritid Riviär
45 m2, Effektiv tykkelse 60 mm
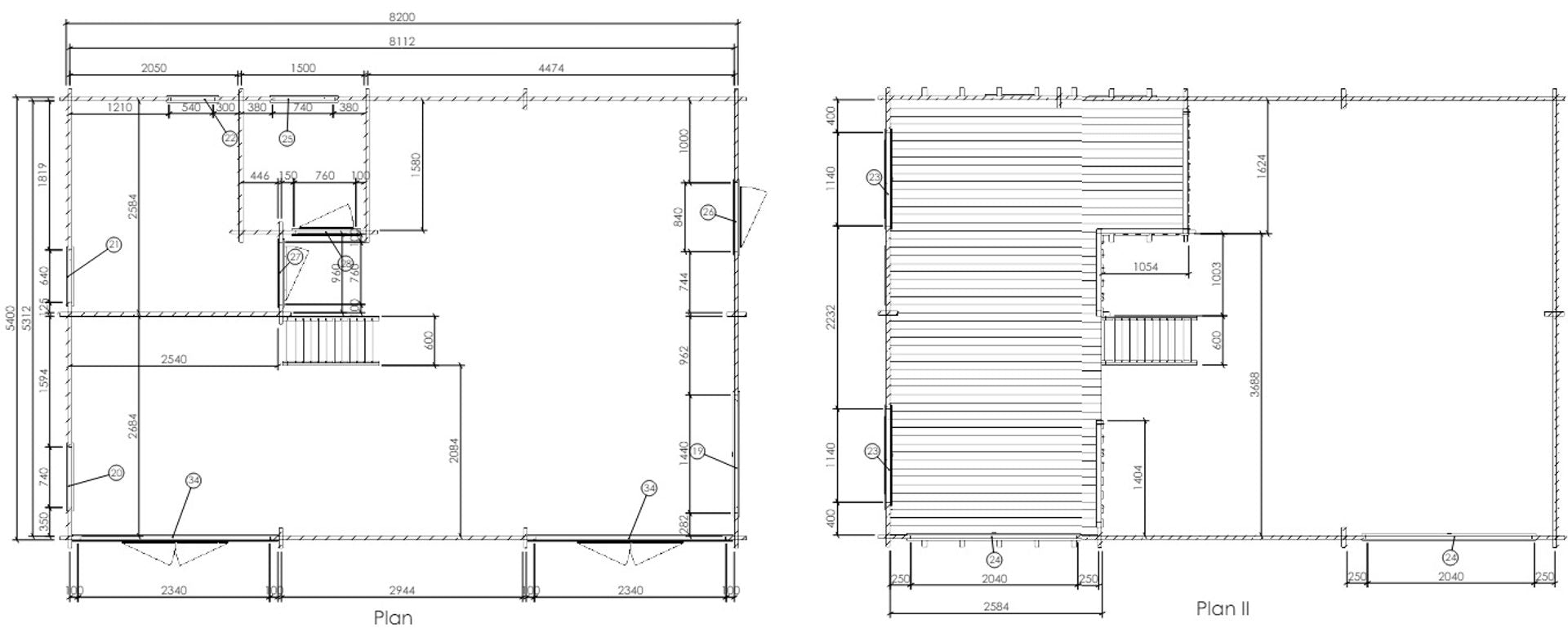
Variant
Moderne RIVIÄR - masser af karakter, lys og åbne rum! Fås både som 45 og 65 kvm - begge med hems.
Luksuriøst og moderne feriehus "Riviär(a)" med både karakter og design - fungerer lige så godt som et permanent hjem for familien med værelser og indkvartering fordelt på 2 niveauer, i alt 65 + 36 kvm - den største version. Husets meget smarte planløsning giver plads til flere soveværelser. Der er åbent helt op til hjørnet, så hytten får en meget fin plads og dejligt lys fra store og mange vinduer og døre.
Riviär 45 (45 kvm boligareal + 15 kvm hems) og Riviär 65 (65 kvm boligareal + 36 kvm hems)
Riviär-hytten leveres som et komplet sæt, som handy folk kan sætte sammen, alle dele er nummererede og udskårne - perfekt "lego" for alle gør-det-selv-folk! Der er dog brug for et stillads på grund af højden.
Med inspiration og ønsker fra vores kunders drømmehuse
Et smagfuldt sommerhus med plads og dejligt lys. Fuldt glaserede dobbeltdøre og vinduer inkluderet, ekstra af alt - komplet materialesæt. Spændende planløsning, der tillader mange gæster og stor komfort - det optimale feriehus!
Vinduer og døre
- Oplukkelige vinduer: 2-glas termoruder (afhængigt af valg), foring inkluderet på ydersiden, U-værdi 1,1 eller 2,6
- Eventuelt 3-glas, sprosse, PVC, aluminium, runde vinduer D600/800 mm.
- Vinduer og døre (2-glas ISO): 4-6 stk. 980x740 mm, 1 680x1980 mm og 2 runde vinduer D600 mm. Indgangsdør 8/9x20, 9x21 dm 1-2 stk. dobbeltdør (helglas/gammeldør) 20x21-23 dm. indvendige døre: 3-5 stk. 7-9x20-21 dm inkl. lås og håndtag
- Ikke inkluderet: Tagbeklædning, isolering, sprosser, indvendig beklædning, skruer og søm.

45 m2, Effektiv tykkelse 60 mm
Variant
Moderne RIVIÄR - masser af karakter, lys og åbne rum! Fås både som 45 og 65 kvm - begge med hems.
Luksuriøst og moderne feriehus "Riviär(a)" med både karakter og design - fungerer lige så godt som et permanent hjem for familien med værelser og indkvartering fordelt på 2 niveauer, i alt 65 + 36 kvm - den største version. Husets meget smarte planløsning giver plads til flere soveværelser. Der er åbent helt op til hjørnet, så hytten får en meget fin plads og dejligt lys fra store og mange vinduer og døre.
Riviär 45 (45 kvm boligareal + 15 kvm hems) og Riviär 65 (65 kvm boligareal + 36 kvm hems)
Riviär-hytten leveres som et komplet sæt, som handy folk kan sætte sammen, alle dele er nummererede og udskårne - perfekt "lego" for alle gør-det-selv-folk! Der er dog brug for et stillads på grund af højden.
Med inspiration og ønsker fra vores kunders drømmehuse
Et smagfuldt sommerhus med plads og dejligt lys. Fuldt glaserede dobbeltdøre og vinduer inkluderet, ekstra af alt - komplet materialesæt. Spændende planløsning, der tillader mange gæster og stor komfort - det optimale feriehus!
Vinduer og døre
- Oplukkelige vinduer: 2-glas termoruder (afhængigt af valg), foring inkluderet på ydersiden, U-værdi 1,1 eller 2,6
- Eventuelt 3-glas, sprosse, PVC, aluminium, runde vinduer D600/800 mm.
- Vinduer og døre (2-glas ISO): 4-6 stk. 980x740 mm, 1 680x1980 mm og 2 runde vinduer D600 mm. Indgangsdør 8/9x20, 9x21 dm 1-2 stk. dobbeltdør (helglas/gammeldør) 20x21-23 dm. indvendige døre: 3-5 stk. 7-9x20-21 dm inkl. lås og håndtag
- Ikke inkluderet: Tagbeklædning, isolering, sprosser, indvendig beklædning, skruer og søm.
Tilføjelser
Tilvalg Frontdør
Hoveddør JM Stugor & Fritid Hvid
Ekstra indvendig dør
Innerdörr JM Stugor & Fritid
Sprosser til vinduer
Fönsterspröjs JM Stugor & Fritid
Limet stang - 25 mm limet stang på begge sider af pakken, uden duplex, økonomisk mulighed.
Specifikation
| Vægt | Bredde | Højde | Længde | Taghældning | slå lyden fra | Gulv | Tak | Husets type | Materiale (træ) | Bygningsareal | Takyta | Boyta | Loft |
|---|---|---|---|---|---|---|---|---|---|---|---|---|---|
| 6200 kg | 5 m | 4,55 m | 8,2 m | 8-10 grader | Høvlede og knudrede vægprofiler (44-90 mm trætykkelse) | 28 mm finhøvlet på gulvbjælker 60/68/70 x 140/160/180/200 mm | 19 mm x 100 mm finhøvlet rå fiberplade på tagryg 60/68/70 x 180/200 eller 280 mm | Knyttet træramme med hems, 2 niveauer (vægge 44-90 mm trætykkelse) | Sent træ af nordisk gran, ubehandlet og umalet træ | cirka 45 kvadratmeter | cirka 54 kvadratmeter | 45 + 15 kvadratmeter | 15 kvadratmeter |
Pakningsdimensioner
| Bredde | Højde | Dybde | Volumen | Vægt |
|---|---|---|---|---|
| 1200mm | 900mm | 6000mm | N/A | 6200kg |
| 1200mm | 900mm | 6000mm | N/A | N/A |
| 1200mm | 900mm | 6000mm | N/A | N/A |
| 1200mm | 900mm | 6000mm | N/A | N/A |
| 1200mm | 900mm | 6000mm | N/A | N/A |

